People living in a village south of Butser Hill are continuing to push back against a major planning proposal.
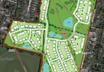
Developer Barratt David Wilson Homes (BDW) wants to build 200 houses on land south of Chalton Lane in Clanfield, and is preparing to send an official application to East Hampshire District Council.
Now, residents have launched a Save Sunderton Fields group to try and stop the proposed development, with plans for a public meeting to be announced soon. For more information about the group, email [email protected].
Last week, Ronald Smith, who is a volunteer for the village pond, created a Change.org petition, titled ‘Prevent unsafe building development in Clanfield’. At time of writing, it has 669 signatures, the number is equivalent to more than 11 per cent of the village’s population. Not all signatures are from residents of Clanfield and Chalton, but it demonstrates the strength of feeling about the proposal.
A spokesperson for BDW Southampton previously told the Petersfield Post that feedback from the recent public consultation at The Clanfield Centre is being taken into account.
Adding: “We are working closely with residents and local authorities, we will refine our plans to deliver much needed high quality new housing to Clanfield.”
Concerns from residents include the increase in traffic, loss of green spaces, flooding and drainage, how the GP would cope and risks to children walking to and from school.





Comments
This article has no comments yet. Be the first to leave a comment.